Search

Leave a Message

Thank you for your message. We will be in touch with you shortly.

Search Homes

Property Description

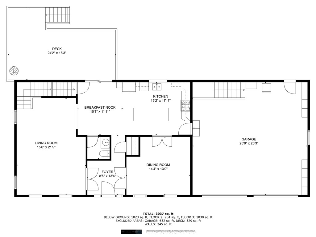
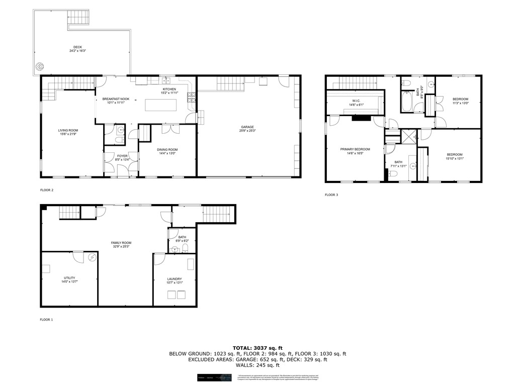
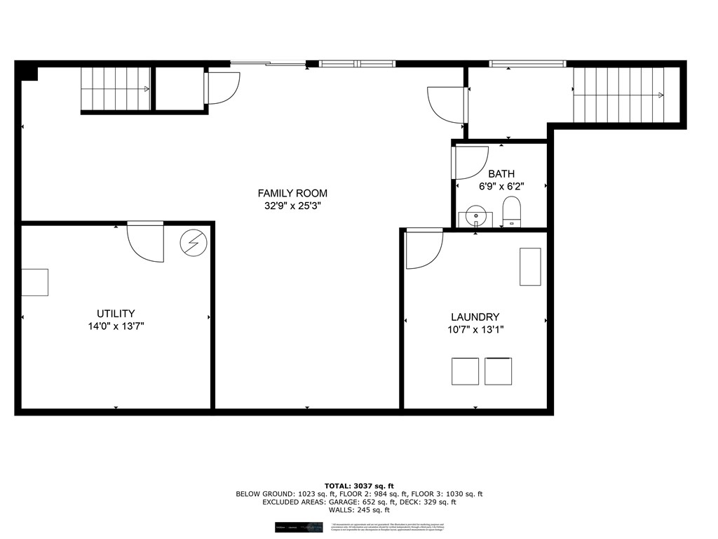
31 Wickaboxet Dr, West Greenwich Country Living with a Luxe Twist Set in the heart of West Greenwich, this home is the kind of property that rarely hits the market one owner, constantly improved, and genuinely cared for from day one. Tucked away on a quiet, tree-lined street, it offers the best of both worlds: serene country living on over 2 acers with all the modern upgrades already done. Outside is a dream setup for entertaining or just unwinding after a long day. Picture yourself relaxing by the inground pool with a built-in waterfall, cooking out on the oversized composite deck (fitted with sleek LED lighting), or enjoying fall evenings by the custom fire pit surrounded by newly installed hardscaping. Music lovers will appreciate the full outdoor Sonos system that ties the whole scene together. Inside, you'll find a fully remodeled kitchen outfitted with quality appliances and thoughtfully designed for function and flow. The finished walkout basement includes a half bath and three separate access points, offering the flexibility to create a home office, guest space, or playroom. Recent upgrades include, fresh interior paint, and updated mechanicals including a whole house Generac generator, new roof, upgraded garage doors and flooring, a water purification system, and in-ground irrigation for the landscaped yard. It's the kind of place you walk into and immediately feel at home.

Overview

Property Status
Sold
Lot Size
2.13 Acres
MLS ID
1391780
Property Type
Residential
Year Built
1999

Features & Amenities

Total Area
2,900 Sq.Ft.
Architecture Styles
Colonial
Stories
2
Garage Spaces
2.0
Water Source
Well
Pool
Indoor
Parking
Attached, Garage
Heat Type
Oil
Air Conditioning
Central Air
Fireplace
None
Appliances
Water Heater
Other Interior Features
Attic, Bathtub, Stall Shower, Tub Shower
Sewer
Septic Tank
Substructure
Concrete Perimeter
Sales Price
$899,900
Real Estate Tax
$8,722/yr
Zoning
RFR2

Downloads

31 Wickaboxet Drive

Schedule a Tour

We would love to help you see this beautiful home! As a full-service brokerage, we can help you tour. Please submit an offer, and answer questions about the buying process.

Thank you

for your interest in 31 Wickaboxet Drive, West Greenwich, RI 02817

31 Wickaboxet Drive
Navigate

Exclusive Listings

Featured Properties

  • 2180 Tower Hill Road Active Under Contract

    $2,995,000

    2180 Tower Hill Road, North Kingstown, RI 02874

    • 6 Beds
    • 4 Baths
    • 5,652 Sq.Ft.
  • 11 Bucks Trail Active Under Contract

    $2,750,000

    11 Bucks Trail, Westerly, RI 02891

    • 3 Beds
    • 6 Baths
    • 6,127 Sq.Ft.
  • 1827 Plainfield Pike For Sale

    $2,495,000

    1827 Plainfield Pike, Johnston, RI 02919

  • 1835 Plainfield Pike Pike For Sale

    $2,495,000

    1835 Plainfield Pike Pike, Johnston, RI 02919

  • 30 Dory Court For Sale

    $2,250,000

    30 Dory Court, South Kingstown, RI 02879

    • 3 Beds
    • 2 Baths
    • 1,668 Sq.Ft.
  • 47 Tuckertown Road For Sale

    $2,200,000

    47 Tuckertown Road, South Kingstown, RI 02879

  • 136 White Birch Circle For Sale

    $1,599,999

    136 White Birch Circle, Scituate, RI 02831

    • 3 Beds
    • 3 Baths
    • 4,487 Sq.Ft.
  • 360 Kingstown Road For Sale

    $1,500,000

    360 Kingstown Road, Narragansett, RI 02882

  • 258 Woodridge Drive For Sale

    $1,395,000

    258 Woodridge Drive, North Kingstown, RI 02874

    • 4 Beds
    • 3 Baths
    • 4,621 Sq.Ft.
  • 25 Southern View Drive For Sale

    $1,250,000

    25 Southern View Drive, Narragansett, RI 02882

    • 4 Beds
    • 4 Baths
    • 2,854 Sq.Ft.
  • 140 White Birch Circle For Sale

    $1,199,900

    140 White Birch Circle, Scituate, RI 02831

    • 3 Beds
    • 3 Baths
    • 3,043 Sq.Ft.
  • 47 Wooded Grove Circle For Sale

    $899,900

    47 Wooded Grove Circle, South Kingstown, RI 02892

    • 4 Beds
    • 3 Baths
    • 3,079 Sq.Ft.
  • 9 Stoneridge Road For Sale

    $899,000

    9 Stoneridge Road, Smithfield, RI 02917

    • 4 Beds
    • 3 Baths
    • 3,300 Sq.Ft.
  • 265 Wickford Court 265 Active Under Contract

    $849,900

    265 Wickford Court, North Kingstown, RI 02852

    • 2 Beds
    • 3 Baths
    • 1,830 Sq.Ft.
  • 8 Robin Drive For Sale

    $849,900

    8 Robin Drive, North Kingstown, RI 02852

    • 4 Beds
    • 3 Baths
    • 3,294 Sq.Ft.
  • 0 Blossom Way Pending

    $549,900

    0 Blossom Way, Narragansett, RI 02882

  • 13 Pigeon Hill Cove For Sale

    $444,900

    13 Pigeon Hill Cove, Hopkinton, RI 02808

    • 3 Beds
    • 1 Bath
    • 1,250 Sq.Ft.
  • 1 Johns Circle Active Under Contract

    $419,900

    1 Johns Circle, Sterling, CT 06377

    • 3 Beds
    • 3 Baths
    • 1,776 Sq.Ft.
  • 0 Hayes Street Pending

    $225,000

    0 Hayes Street, Cranston, RI 02920

View All

Follow Us On Instagram